분당이매 더 스카이 52 - 1호 라인
▷1호 라인의 경우 아직 공사가 끝나지 않은 세대가 많이 있었습니다. 113호 라인처럼 공사가 완료되어 입주가 완료된 것으로 보이는 세대가 있는 반면, 103호 라인의 경우에는 공사가 아직 끝나지 않은 상태였습니다.


▷104호 뒤편으로는 영장산과 연결되는 길이 보입니다. 하지만 아직 정리가 되지 않아 토사가 그대로 드러나 있는 상황이고, 주위에는 쓰레기도 많이 방치되어 있습니다. 명품 타운하우스가 되기 위해서는 주위가 많이 정리가 되어야 할 것 같습니다.


▷118호를 거쳐서 돌마로 지하차도로 이어지는 부분입니다. 역시 쓰레기가 방치되어 있고, 아직은 어수선한 분위기 입니다. 역시 아쉬운 부분입니다.


내부 인테리어
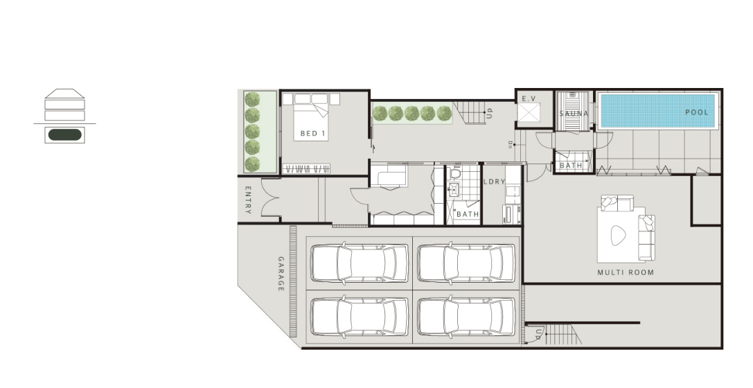
▷지하 1층에는 주차 4대(법정 3)의 공간이 마련되어 있습니다. 주차장은 리모컨으로 열고 닫을 수 있는 자동문이 설치되어 있어 편리합니다.
분당이매 더 스카이 52에서 가장 좋은 부분은 역시 옥외 풀입니다. 크기가 작은 것이 약간 아쉽기는 하지만 그래도 집에서 야외 풀을 프라이빗하게 즐길 수 있다는 점은 정말 좋습니다. 그리고 수영장과 바로 연결되는 사우나가 있습니다. 야외에서 풀을 즐기고 바로 사우나를 즐길 수 있는 부분은 일반 아파트에서는 감히 상상할 수 없는 타운하우스만의 장점입니다.
각종 멀티미디어를 누릴수 있는 멀티룸 또한 큰 장점입니다. 일반 아파트의 경우 소음 문제로 스피커 음량도 마음대로 올릴 수 없는데, 분당이매 더 스카이 52에서는 지하에서 자신이 원하는 대로 마음껏 즐길 수 있습니다.





▷1층에는 주방과 거실 그리고 엘리베이터가 연결됩니다. 특히 양 옆 테라스에서 각 세대만의 정원이 있습니다. 특히 한 세대의 경우 아래와 같이 단풍나무와 자작나무를 심어 놓았는데, 정말 관리가 잘된 것 같습니다. 역시 타운하우스에 살고 싶었습니다.




▷2층에는 방 3개와 욕실 2개가 위치해 있습니다. 2층에도 엘리베이터가 연결됩니다.



▷마지막 옥상 테라스입니다. 각자 취향에 맞게 옥상을 꾸민다면 정말 캠핑을 다닐 필요가 없을 것 같습니다.


분당이매 더 스카이 52 분양가
▷분당이매 더 스카이 52는 A, B, C 세가지 타입이 있습니다. 각 타입별 토지 면적 및 건축연면적이 각기 다릅니다. 분양가는 30억 중반 ~ 50억 중반입니다.
분양가가 넘사벽이긴 하지만 아파트에서 누릴 수 없는 4대까지 가능한 주차장, 수영장 및 테라스만으로도 한번쯤 살아보고 싶은 곳입니다.

'재테크 > 부동산' 카테고리의 다른 글
| 과천지식정보타운(지정타) - 과천 디에트르 퍼스티지 (S2BL) 분양 정보와 혜택 (28) | 2024.06.25 |
|---|---|
| 과천지식정보타운(지정타) 공공주택지구 - 전체 계획 및 전망 (30) | 2024.06.24 |
| 분당 타운하우스 - 분당이매 더 스카이 52: 럭셔리 주거지의 새로운 기준 (33) | 2024.06.17 |
| 판교 제2테크노밸리 인접 최고급 타운하우스 코오롱 린든그로브 – 럭셔리 라이프스타일의 정점 (37) | 2024.06.14 |
| 판교 제2테크노밸리 2구역 입주 기업 및 위치 완벽 가이드 (32) | 2024.06.13 |